Deze website maakt gebruik van geanonimiseerde cookies om jouw gebruikservaring te optimaliseren en voor de analyse van onze website. Deze cookies kun je niet uitzetten. Bij het tonen en afspelen van YouTube video's worden cookies van derden geplaatst. Deze cookies van derden kun je wel uitzetten. Klik op "Akkoord" als je akkoord gaat met dit gebruik van cookies, klik op "Aanpassen" voor meer informatie en om zelf te bepalen welke cookies deze website plaatst.
Welk vloerkleed past bij jou
Of je nu klassiek woont of modern, groot of klein: een vloerkleed als wooneiland past altijd! Het ideale interieur is persoonlijk, maar moet ook een geheel zijn. Door een Vloerkleed op Maat toe te passen als wooneiland wordt je zithoek of eetkamer een eenheid. Je verbindt verschillende meubelen - de bank, salontafel en het dressoir - tot een comfortabel geheel. Bovendien vormt het een mooi contrast met de harde vloer en wordt de ruimte er letterlijk en figuurlijk zachter van. Hoe groter het kleed, des te groter het gevoel van comfort. Onze vloerkleden zijn op elke maat en naar eigen wens te maken, dus aan te passen aan elke ruimte! Speel met de afmeting, de vorm, de kleur van het tapijt en de verschillende soorten en kleuren afwerkingen.
Zelf een vloerkleed op maat ontwerpen?
Voor welke keuzes sta je bij het kiezen van een vloerkleed op maat? Een goed startpunt is de grootte van het vloerkleed. Baseer deze op de afmetingen van de ruimte waarin het vloerkleed komt te liggen. Er bestaan geen regels, maar wel nuttige richtlijnen! Bekijk bijgaand filmpje en tips voor meer informatie over de mogelijkheden qua afmeting, kleur en afwerking.
Een aantal tips die je helpen bij het bepalen van de afmeting van je vloerkleed
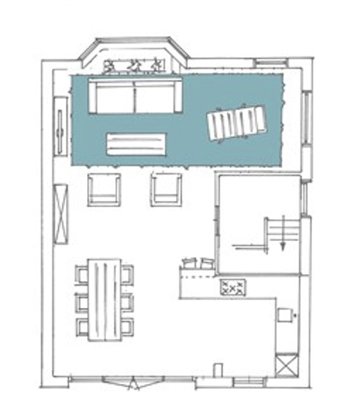
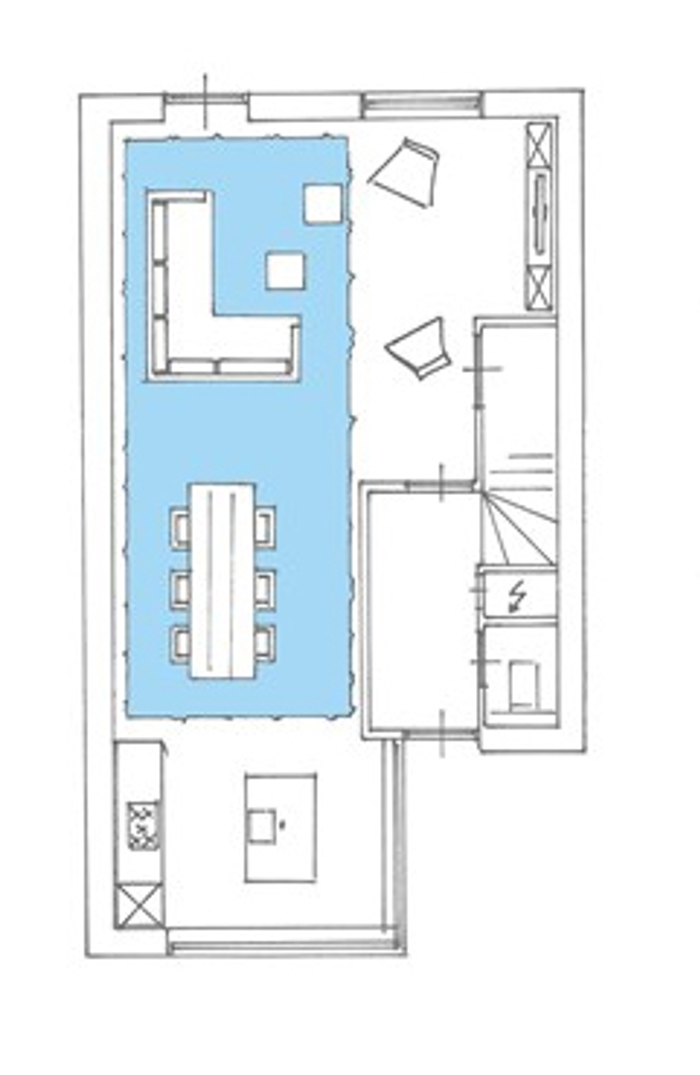
- Teken op een vel papier een plattegrond op schaal van je woonruimte met daarin de meubels. De vorm en de afmeting van je woonruimte spelen een belangrijke rol bij het bepalen van de afmeting van je kleed. Onder plattegronden vind je een aantal voorbeelden.
- Een vloerkleed is een goede manier om een ruimte af te kaderen binnen een grotere ruimte (de zithoek in de woonkamer bijvoorbeeld). Dit geldt vooral voor moderne, open structuren. Een vloerkleed moet er niet 'verloren' uitzien in een ruimte, en genoeg impact hebben. Kies je kleed daarom niet te klein.
- Plaats het vloerkleed 30 - 40 cm van de muur.
- Leg het kleed onder de hele zithoek, dus ook onder de bank. Hoe groter het kleed, hoe groter het gevoel van comfort.
- Door een mix te maken van tapijtsoorten en -kleuren maak je je eigen unieke patroon. Zo kun je vormen laten insnijden waar je verschillende kleuren of kwaliteiten gebruikt om bijvoorbeeld een hoog-laag effect te creëren. Hiermee ontwerp je zelf een vloerkleed op maat.
- Leg een totaal ander accent op je inrichting door een randafwerking in een contrasterende kleur.
- Wissel af met kleden in verschillende kleuren in het voor- en najaar voor een totaal ander accent op je inrichting.
- Een vloerkleed in je eetkamer? Kies je kleed in de juiste verhouding tot de tafel. Stoelen vallen bij voorkeur binnen het kader van het kleed. Zorg dat je je stoel naar achteren kunt schuiven zonder dat de poten van het kleed afglijden. Neem in ieder geval 75 cm in elke richting als richtlijn.
- De kern van het kleed wordt in beslag genomen door de tafel en stoelen. Wat valt op? De rand van het kleed! Kies dus voor een mooie afwerking.
- Ga op zoek naar inspiratie, zo weet je beter wat je wilt.
Neem eens een kijkje in ons lookbook voor inspirerende voorbeelden
Plattegronden



